Containers Baskets Racks Variables
Containers
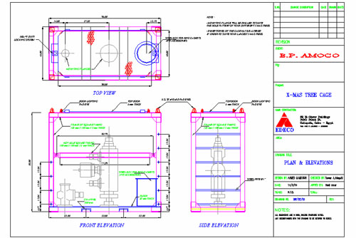
X-Mass Tree Rack
X-Over Rack
Powered & Hosted By Network Egypt